




QD 型 5~50/10 吨吊钩桥式起重机介绍
重要结构与组成
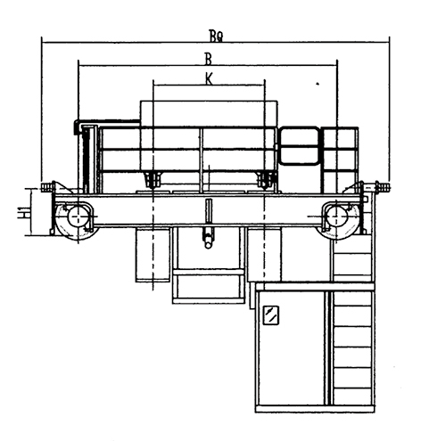
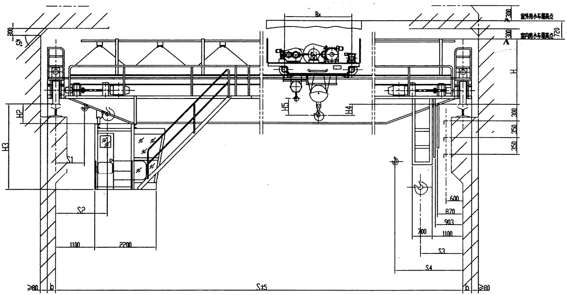
双主梁桥架:由两根箱型主梁和端梁焊接而成,采用强度高钢材(如 Q235B 或 Q355B),通过优化结构设计确*承重稳定,跨度通常为 10.5~31.5 米(可根据厂房跨距定制)。桥架两端通过车轮组支撑在厂房两侧的轨道上,承担整体设备和物料的重量。
主副钩起升机构:
主钩:起重量 5~50 吨,配备大功率卷扬机(由电机、减速器、卷筒、制动器组成),通过钢丝绳连接吊钩,实现重物的垂直升降,起升速度根据吨位不同分为 8~16m/min(低速档适合精密吊装,高速档提升效率)。
副钩:起重量 10 吨,独立卷扬机驱动,起升速度较快(通常 16~32m/min),用于吊装轻型物料或辅助主钩完成精准对位,提升作业灵活性。
运行机构:
大车运行:驱动桥架沿厂房轨道纵向移动,采用 “分散驱动” 方式(两端各设一套电机 + 减速器),运行速度 16~30m/min,确*桥架平稳移动。
小车运行:安装在主梁轨道上,带动主副钩沿主梁横向移动,运行速度 20~40m/min,采用集中驱动,配合限位装置实现精准停靠。
电气控制系统:由控制屏、操作室联动台(或遥控器)、限位开关等组成,控制起升、大车 / 小车运行的动作逻辑,配备过载保护(主副钩独立保护)、起升高度限位、行程限位、紧急停止等安*装置。
主要特点
适用场景
机械加工车间:机床、模具、零部件的吊装与转运;
冶金车间:钢坯、铸件等中型物料的搬运;
仓库与料场:成件货物、托盘的堆垛与装卸;
电力行业:中小型设备安装、检修时的起重作业。
注意事项
操作人员需持证上岗,熟悉主副钩的载荷限制,严禁超载(主副钩不可同时满负荷工作);
起吊前需检查钢丝绳磨损、吊钩状态、制动性能,确*安*装置(如限位器)灵敏有效;
运行时避免桥架与厂房结构、其他设备碰撞,主副钩升降时需保持垂直,禁止斜拉歪吊;
定期对运行机构加注润滑油,对起升机构进行钢丝绳润滑和制动器调整,延长设备寿命。





